Komfortabel und sicher wohnen
Alle Belia Seniorenresidenzen sind Neubauten nach modernen Maßstäben, die den hohen Anspruch an Komfort mit dem Bedürfnis nach Sicherheit verbinden. Frische Farben, eine zeitgemäße Ausstattung und das gepflegte Ambiente sorgen für den Wohlfühlfaktor.
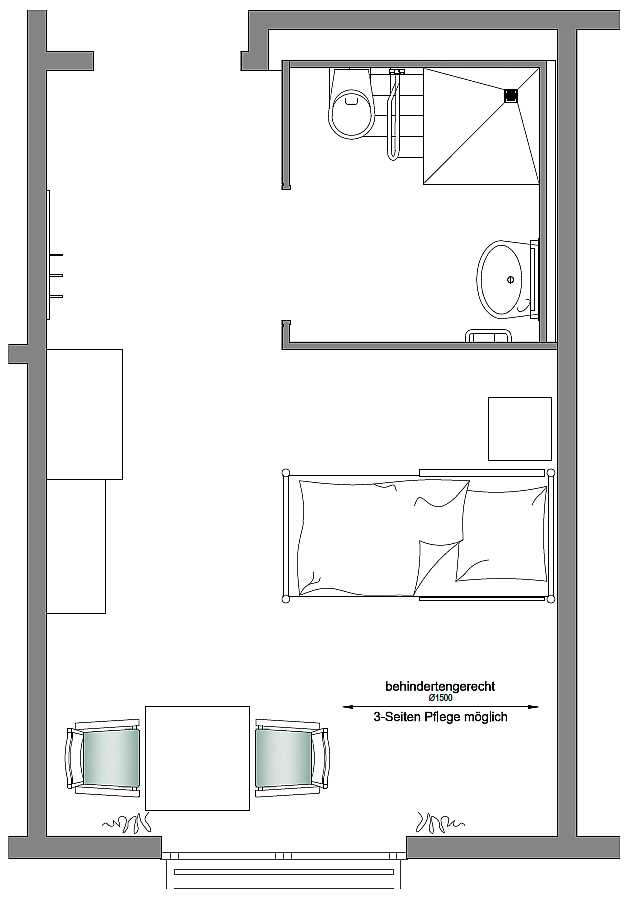
Privatsphäre genießen
Die meisten Menschen wünschen sich neben Orten der Begegnung auch ihren ganz persönlichen Rückzugsraum. Bei Belia verfügt jeder Bewohner über ein eigenes Zimmer, das Ruhe und Privatsphäre bietet.
- Größe ca. 16-21 m² zzgl. Bad
- Barrierefreies Bad mit ebenerdiger Dusche, Stützgriffen und Anti-Rutsch-Fliesen
- Bodentiefe Fenster mit „französischem Balkon“ für Helligkeit und gute Sicht
- Integriertes Notruf-Sicherheitssystem
- Wohnliches Mobiliar in freundlichem Design: Modernes Pflegebett, Nachttisch,
- Tisch mit Stühlen, TV-Tisch, Garderobe mit Spiegel, Kleiderschrank
- Boden in warmer Holzoptik (rollator- und rollstuhlgerecht)
- Sonnenschutz mit bequem bedienbaren elektrischen Rollläden
- TV- und Telefonanschluss
Selbstverständlich können auf Wunsch eigene Möbel mitgebracht und das eigene Zimmer individuell eingerichtet und gestaltet werden.
Ausstattung der Belia Seniorenresidenzen
- Eingangsfoyer mit Rezeption
- Gemütliche Lounge / Bibliothek
- Hauseigene Vollküche mit eigenem Küchenteam
- Restaurant zur täglichen Nutzung und für Veranstaltungen
- Hauseigener Friseursalon
- Kommunikative Gemeinschaftsbereiche / Wohnküche und Sitzecken
- Große Balkone in Gemeinschaftsbereichen auf den Wohnetagen
- Wellness- und Pflegebad
- Spezieller Raum mit Aufladestation für Elektro-Rollstühle
- Reich begrünte Außenanlagen mit Terrasse, Kräuterbeet, Rundwege und Sitzgelegenheiten
- Hauseigene Parkplätze
- Harmonisches Farbkonzept und abgestimmtes Ambiente



